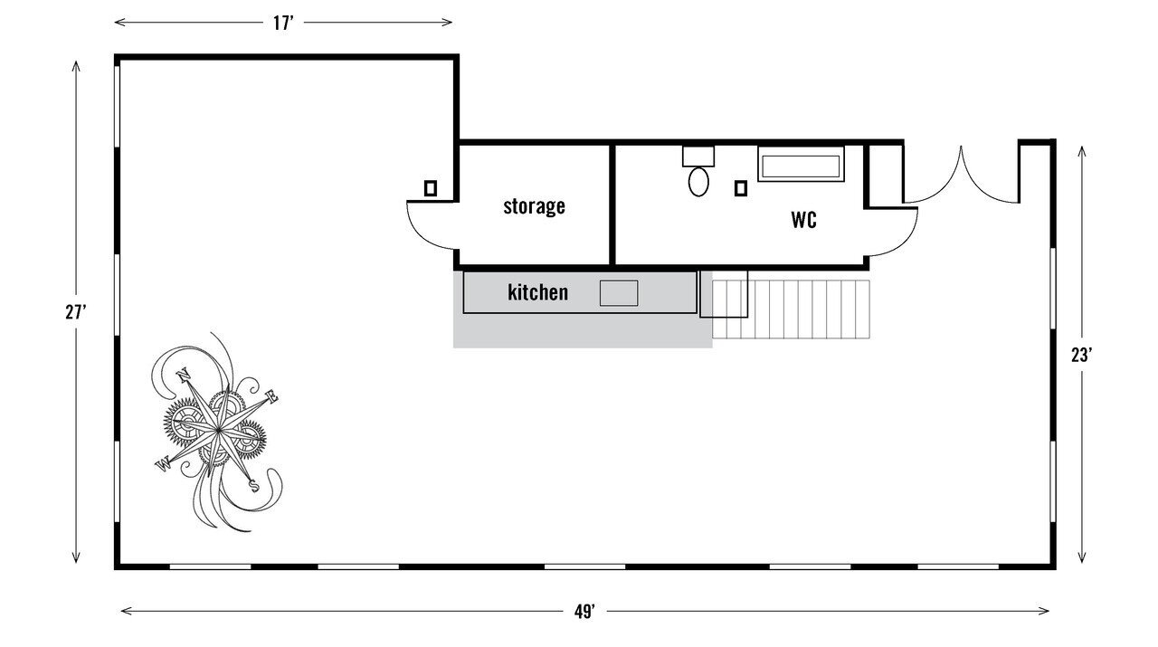
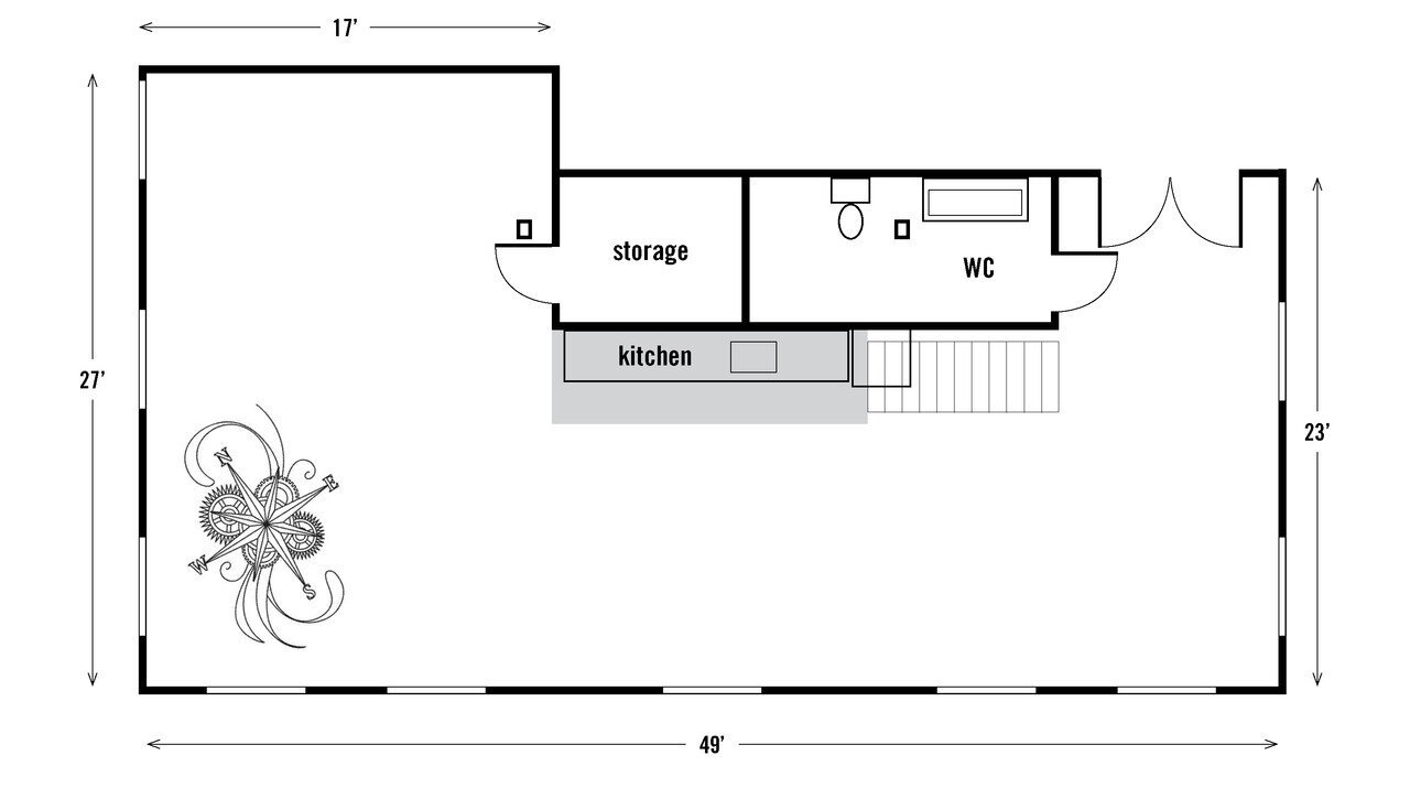
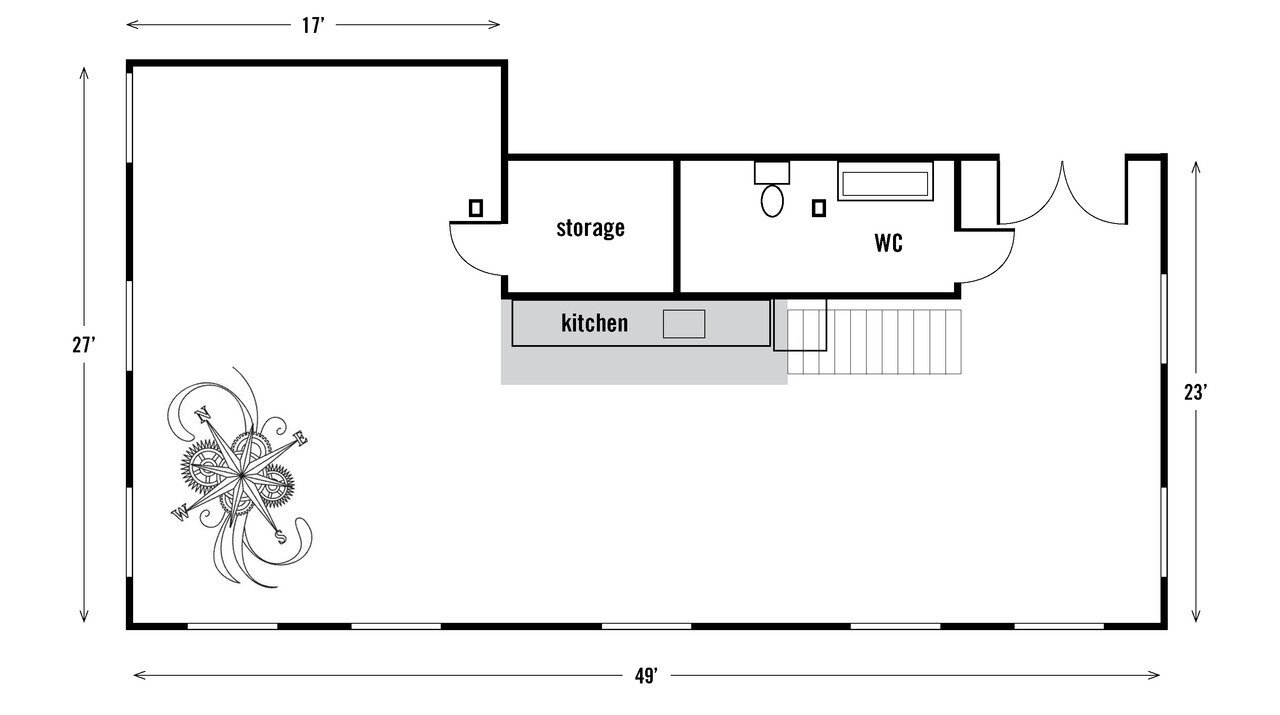
Perched atop the Gowanus Industrial Arts Complex - 1,200 ft2 of sun-drenched space dedicated to efficiency in production.
This well-equipped (PDF) studio is ideal for editorial production rentals, small-group rehearsal & project development. Rates are based on production scope and scale and are available on request.
specs & stats
1200 square feet with 13-14′ ceilings
10 windows with south, east and west exposures
private bathroom and kitchen within the space
24 hour freight elevator
½ block to the Smith+9th F/G, 5 minutes to/from the Battery Tunnel
In-house equipment (PDF) | Floor plan (PDF)
All Loft installations are supported by Vanderbilt Republic creative/production.
PLEASE NOTE: We are unable to host late night and/or high capacity parties/private events in the space due to building regulations. Our focus is site specific installation/performance & photo/film production.














